Cột đènTHGT

Các mẫu cột đèn THGT và cách bố trí đèn THGT

  1. Cột đèn nháy vàng 4m

    0₫
  2. Cột đèn 4m

    0₫

    Cột đèn 4m : - Phương án bố trí đènXem thêm

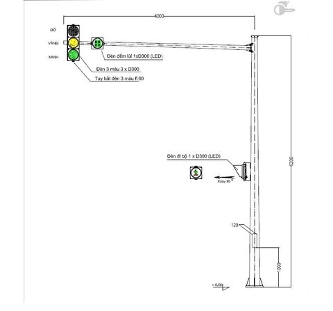
  3. Cột 6,2m vươn 7m

    0₫

    Cột đèn tín hiệu giao thông 6m2 vươn 7m : - Phương án bố trí đèn - Bản vẽ chi tiết cột đènXem thêm

  4. Cột 6,2m vươn 4m

    0₫

    Cột 6m2 vươn 4 : - Phương án bố trí đèn - Bản vẽ chi tiết cộtXem thêm